Nauji butai Kaune
BUTO NR.
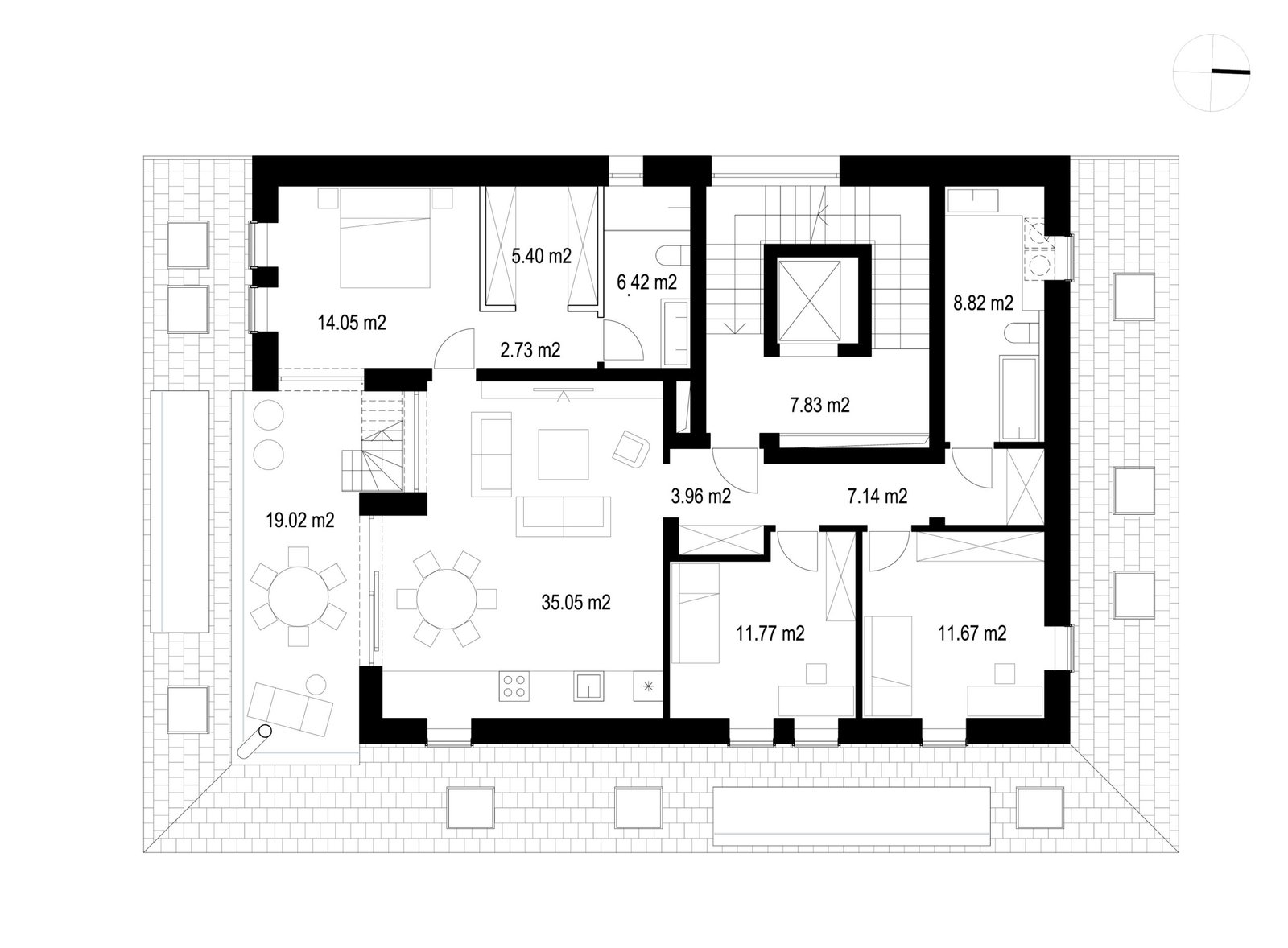
19
NAMO NR.
P2
PLOTAS
107,01 m2
AUKŠTAS
7
KAMBARIAI
4
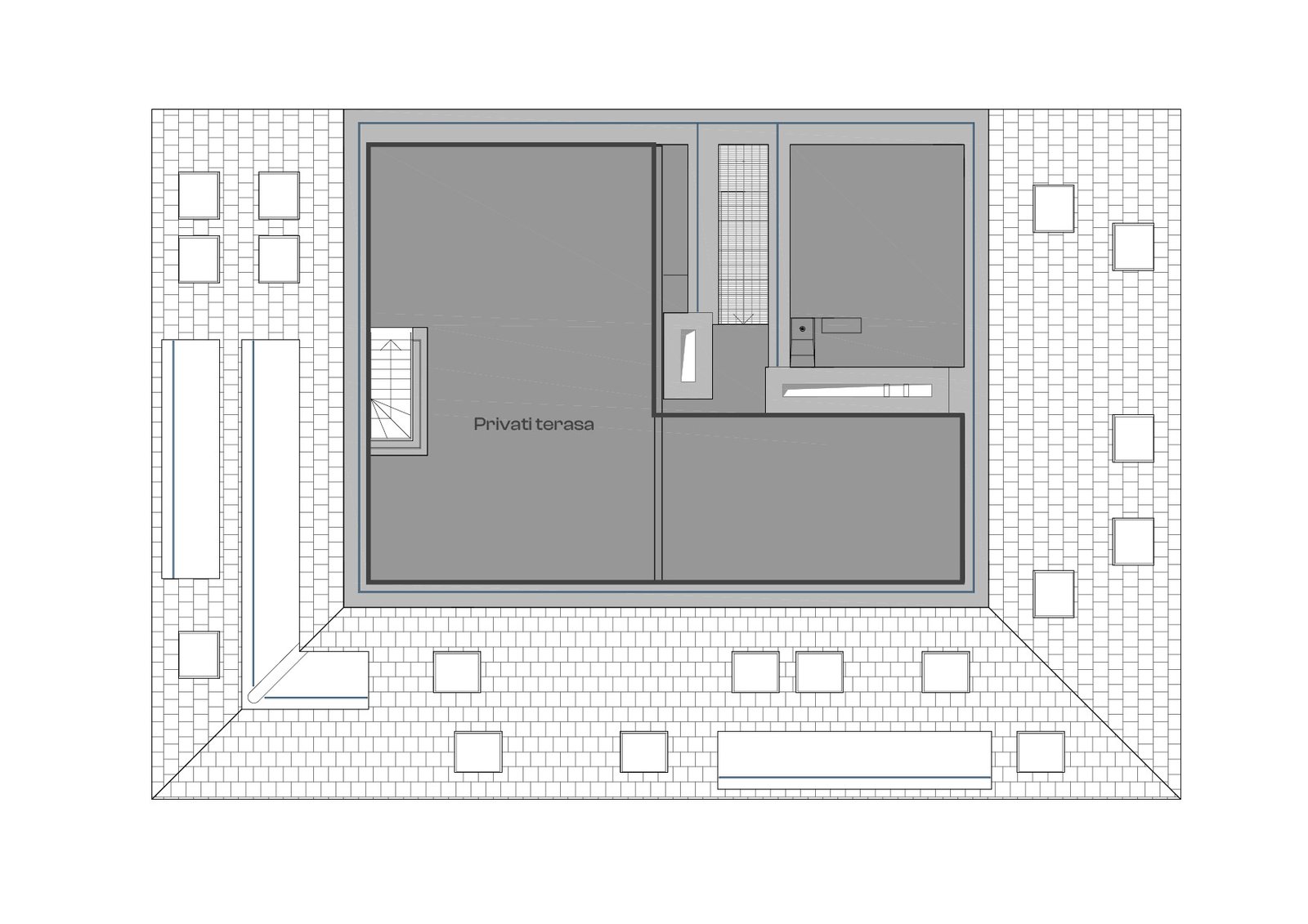
BALKONAS
19.02 m2 + Privati terasa
KRYPTYS
V, Š, R, P
KAINA
Sutartinė
STATUSAS
Laisvas
Username or email *
Password *